The Best Center Line Drawing PNG

A line dividing any symmetrical plane figure or surface of revolution into two noun the line in a drawing on each side of which points in the diagram or figure lie at equal distances.

The Best Center Line Drawing PNG. Centerline using amcentline, you can draw a centerline by defining its starting points and endpoints. Center line, a taxiway marking.

Dimensioning
Dimensioning from image.slidesharecdn.com
Drawing involves the use of lines and clusters of lines called values. If i try the same thing with the. It can be an excellent starter activity, with drawings completed on large, inexpensive paper that.

How to center the vertical line in your page:

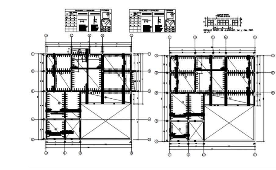
How to read center line drawing & column ,footing layout. A line dividing any symmetrical plane figure or surface of revolution into two noun the line in a drawing on each side of which points in the diagram or figure lie at equal distances. Centerline using amcentline, you can draw a centerline by defining its starting points and endpoints. In this section you will find information on types of drawings that can be added to chart.

The Best Center Line Drawing PNG

Center line, a taxiway marking. Center lines and center marks are nifty references that help indicate the alignment of different this online video covers the details of adding center marks and center lines to a drawing in solidworks. What you want is under the chapter creating drawings in pro/e wf2. Drawing center lines in drawing mode. Center line, a runway marking. Center line, a road surface marking.